рефераты бесплатно
 

МЕНЮ


Реферат: Штукатурення елементів віконних і дверних прорізів

Реферат: Штукатурення елементів віконних і дверних прорізів


Тема: Штукатурення елементів віконних і дверних прорізів


Зміст

1. Загальні відомості про штукатурні роботи.

2. Пристрої для виконання опоряджувальних робіт на висоті

3. Ручний інструмент, інвентар та пристрої

4. Штукатурні розчини та їх властивості

5. Приготування розчинів вручну

6. Штукатурення елементів віконних і дверних прорізів

7. Дефекти штукатурки і якість виконання робіт

8. Організація праці опоряджувальників

Використана література


1. Загальні відомості про штукатурні роботи

Штукатурні роботи — це процес нанесення покриття на поверхні будівельних елементів. Таке покриття може бути виконане нанесенням на поверхню шарів штукатурного розчину (так звана мокра штукатурка) або обшиванням опоряджуваної поверхні штукатурними листами заводського виготовлення (суха штукатурка). Шар розчину (штукатурка) після затвердіння і наступного оброблення поліпшує захисні властивості конструкції (теплотехнічні, звукоізоляційні тощо), створює необхідні санітарно-гігієнічні та естетичні умови. Штукатурка захищає поверхні будівельних елементів від шкідливих атмосферних і техногенних впливів, високих температур і подовжує термін експлуатації будинків і споруд.

Обштукатурені приміщення більш гігієнічні, значно тепліші, менш звукопровідні. За допомогою штукатурки фасад і внутрішні приміщення будівлі можна прикрасити архітектурними деталями, виконати найрізноманітніші фактури поверхні.

Незважаючи на розвиток індустріального опорядження, обштукатурення залишається одним із найпоширеніших видів опоряджувальних робіт, особливо у цегляному домобудівництві.

Залежно від призначення штукатурки класифікують на звичайні, декоративні та спеціальні.

Звичайні штукатурки виконують з єдиною метою — вирівнювання поверхні будівельних елементів, які потім опоряджують шпалерами або фарбують різноманітними малярними сумішами. ЇЇ, як правило, наносять на поверхні окремими шарами, що виконують певні функції.

За якістю виконання звичайна штукатурна буває простою, поліпшеною і високоякісною.

Декоративні штукатурки призначені для надання поверхні закінченого кольорово-фактурного вигляду, що не потребує наступного фарбування поверхні чи її опорядження іншими матеріалами.

Спеціальні штукатурні покриття надають будівельним елементам, що обробляються, тих чи інших певних властивостей. Спеціальні штукатурки можуть бути гідро-, тепло-, звуко- та газоізоляційними, хімічно та біологічно стійкими, рентгено- і пожежозахисними.

Вимоги до готовності будівлі під штукатурення

До початку штукатурних робіт у будинку потрібно закінчити такі роботи:

-улаштування всіх видів основ під «чисті» підлоги;

-улаштування перегородок із законопачуванням щілин по периметру;

-улаштування віконних і дверних блоків із законопачуванням щілин між коробками і стінами;

-улаштування вбудованих шаф і підвіконників, обштукатурення ніш, стін за приладами опалення і борозен під приховану проводку опалення, обштукатурення поверхні за трубами і ніш електрощитків;

-установлення вентиляційних коробів, прочищення вентиляційних каналів;

-установлення шаф для електроосвітлювальних і низьковольтних приладів;

-закріплення перегородок до несівних конструкцій із заповненням розчином і затиранням місць прилягання;

-основні санітарно-технічні роботи (монтаж і випробовування систем центрального опалення, водопроводу, каналізації і газопроводу);

-перевірка у стінах вентиляційних каналів і газоходів;

-прокладання прихованої електропроводки для силових освітлювальних і слабких струмів;

-закріплення гачків для підвішування світильників;

-установлення огорож, сходів, балконів;

-установлення стояків електрообладнання (електроосвітлення, телефонізації, радіофікації, телебачення).


2. Пристрої для виконання штукатурних робіт на висоті

Штукатурні роботи на висоті до 4 м виконують з помосту, а у разі невеликого обсягу ремонтних робіт - з пересувних інвентарних столиків; ремонтні і реставраційні роботи - з колисок або пересувних вишок; зовнішні і внутрішні роботи - з риштовання.

Поміст роблять з інвентарних столиків, котрі встановлюють вздовж однієї із стін приміщення на відстані 1,5-2 м один від одного і перекривають спеціально виготовленими щитами або окремими дошками. Тимчасовий поміст можна зробити з дощок, які укладають на дерев'яні козла. Настелені дошки прибивають до козел цвяхами.

Пересувні інвентарні столики конструктивно схожі, але їх призначення і застосування різні. Виробляють їх з металевих труб або кутикової сталі.

Пересувний різновисотний столик (рис. 2.1а) складається з чотиристоякового опорного каркаса, драбини і дерев'яного настилу. Конструкція столика передбачає можливість піднімання настилу завдяки висувним стоякам, які переміщують уздовж нерухомих стояків і закріплюють штирями або спеціальними затискними гвинтами на потрібній висоті (від 0,7 до 1,7-2,5 м). За настил використовують інвентарний дерев'яний щит розміром від 60x120 до 80x160 см. Якщо настил столика необхідно підняти на висоту більшу за 1,1 м, його з одного боку обгороджують захисним поручнем.



Рис. 2.1.Пересувні інвентарні столики:

а - різновисотний; б - двовисотний; в — універсальний; 1 - нерухомий стояк;

2 - драбина; 3-висувний стояк; 4-настил;

5 - штир; 6 - підкіс; 7 - полиця; 8 - поручень

Двовисотний столик (рис. 2.1б) складається з опорного каркаса, драбини, захисних засобів (поручнів), настилу і полиці для розміщення пристроїв та інструментів. Столик призначений для виконання опоряджувальних робіт в приміщеннях заввишки 2,5-2,7 м. Конструкція його дає змогу фіксувати положення настилу на двох рівнях - 0,7 і 0,9 м. Розмір робочої площадки столика - 60x100 см, маса - 22 кг.

Універсальний столик (рис. 2.1в) складається з чотиристоякового прямого опорного каркаса, різновисотного опорного каркаса, драбини, настилу і полиці. Столик призначений для виконання опоряджувальних робіт в приміщеннях заввишки 2,5-2,7 м, а також на сходових клітках. Конструкція його дає можливість фіксувати положення настилу в двох рівнях. Працюючи у звичайному приміщенні, настил можна встановити на висоті 0,7 або 0,9 м. Для роботи на сходовій клітці до столика приєднують різновисотний опорний каркас, обладнаний підкосами. При такому положенні столика настил можна встановити на висоті 0,75 або 0,95 м. Розмір робочої площадки столика - 60x100 см, маса - 24 кг.

Колиски за принципом переміщення бувають самопідйомні, обладнані електролебідками, та такі, які піднімають за допомогою лебідок, встановлених на землі. Самопідйомні колиски різних марок ЛОС-100-120, ЛС-80-250, ЛЗ-30-250, ЛП-11М, ТП-11 тощо відрізняються одна від одної габаритами та вантажопідйомністю.

Самопідйомна колиска ТП-11 (рис. 3.2, а) найбільш зручна в експлуатації. Вона призначена для піднімання двох робітників і 100 кг вантажу на висоту до 100 м. Робоча площадка колиски розміром 0,97x4,4 м витримує навантаження до 300 кг. Колиска складається з металевого каркаса 1 з поручнем 3, двох електролебідок 2, суцільнометалевого настилу 4 із захисним бортом 5 заввишки 15 см.

Піднімають колиску за допомогою двох сталевих тросів, які перекидаються через блоки, розміщені на кінцях консольних балок, що закріплюються на даху або горищному перекритті. Після включення лебідок в електромережу троси починають намотуватися на барабани лебідок і піднімають колиску. При переключенні лебідки на зворотній рух троси розмотуються і колиска опускається.

Одномісну самопідйомну колиску ЛОС-100-120 (рис. 2.2, б) застосовують для виконання дрібних ремонтних робіт на фасадах будинків. Вона складається з металевого каркаса 1 із поручнем 3, електролебідки 2, суцільного металевого настилу 4 з захисним бортом 5. Колиска призначена для піднімання одного робітника і 20 кг вантажу на висоту до 100 м. Піднімається вона за допомогою одного троса.

Пересувні вишки бувають самопідйомні та збірно-розбірні, їх використовують при опорядженні фасадів будівель висотою до чотирьох поверхів і для робіт в приміщеннях з високо розміщеною стелею.

Пересувна самопідйомна вишка ВО-10,6-12 (рис. 2.3, а) складаєтья з двох колон 2, візка 1 та робочої платформи 3. Платформа за допомогою лебідки з електроприводом пересувається вздовж колон, як по напрямних, з відмітки 1,25 до 10,6 м і може зупинятись на різній висоті в цих межах.

Рис. 2.2. Колиски:

а - самопідйомна; б - одномісна самопідйомна ЛОС-100-120

1 - каркас; 2 - електролебідки; 3 - поручень; 4 - настил; 5 - захисний борт

Розмір робочої площадки платформи - 2x4 м. Переміщення платформи здійснюється з пульта управління, що міститься на ній. Якщо електроенергії немає, то платформа пересувається за допомогою ручного привода лебідки, обладнаного поряд з електричним. Вишка спирається на чотири колеса з гумовими ободами. На нове місце роботи в межах одного будинку вишку пересувають вручну, попередньо опустивши платформу на нижню відмітку 1,25 м. Максимально допустиме навантаження на платформу 500 кг.

Пересувна збірно-розбірна вишка (рис. 2.3, б) дає змогу виконувати роботи на висоті до 6 м. Вона складається з металевого збірного каркаса 6, що спирається на чотири колеса, драбини 7, захисного поручня 4 та дерев'яного настилу 5. На робочому місці вишку збирають з окремих секцій, нарощуючи їх до потрібної висоти. Розмір робочої площадки вишки - 2x2 м, максимально допустиме навантаження - 200 кг.

У межах приміщення або вздовж фасаду будинку вишку пересувають вручну.

Риштовання - тимчасові допоміжні пристрої, використовувані для створення на потрібній висоті умов для проведення будівельних робіт.

Залежно від способу піднімання і пересування риштовання бувають висячі, драбинні, виставні, пересувні, збірно-розбірні, встановлювальні. їх виготовляють з металу і деревини.


Рис. 2.3. Пересувні вишки:

а - самопідйомна ВО-10,6-12;

б - збірно-розбірна

1 - візок; 2 - колони; 3 - платформа;

4 - поручень; 5 - настил; 6 - каркас;

7-драбина

Під час виконання опоряджувальних робіт використовують інвентарні риштовання.

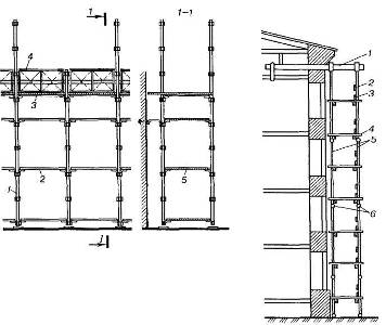
Трубчасті безболтові риштовання (рис. 2.4) застосовують для штукатурення фасадів будинків заввишки до 40 м. Вони складаються з опор, прогонів, поперечок, поручнів та дерев'яного настилу. До кінців прогонів і поперечок приварено гачки, а вздовж опор на відстані 2 м один від одного - спеціальні патрубки (втулки). Під час монтажу риштовань гачки прогонів 2 і поперечок 5 вставляють у відповідні патрубки опор 1. Опори встановлюють уздовж стіни на відстані 2 м одна від одної. Ширина риштовань 1,65 м. Нижні кінці опор вставляються у спеціальні башмаки, які спираються на дерев'яні підкладки, підмощені під кожну пару опор. Риштовання прикріплюють до стін гачками, які закладають у петлі анкерних болтів, заздалегідь закріплених у стіні.

На прогони укладають інвентарні дерев'яні щити настилу 3. Настили риштовань обгороджують інвентарним поручнем 4 заввишки не менше 1 м, у нижній частині якого закріплюють бортову дошку заввишки 15 см.


Рис. 2.4. Трубчасті без болтові риштовання:

1 - опора; 2 - прогін;

3 - дерев'яний настил;

4 - поручень; 5 - поперечка

Рис. 2.5. Підвісні (струнні) риштовання:

1 - консольна балка; 2 - поручень;

3 -бортова дошка; 4 -дерев'яний настил;5 - струни; 6 – шарніри


Окремі яруси риштовань поєднують сходами.

Підвісні (струнні) риштовання (рис. 2.5) підвішують до металевих або дерев'яних консольних балок 1, які закріплюють під дахом. Струни риштовань 5 складаються з окремих ланок завдовжки 4 м кожна. До струн приварені спеціальні гачки, в які закладають прогони настилу, поручні 2 та бортову дошку 3. Відстань між струнами вздовж стіни становить 2,5-4 м, ширина настилу 2 м. Щоб риштовання не розгойдувались, їх у відповідних місцях прикріплюють до стіни жорсткими стяжками.

3. Ручний інструмент, інвентар і пристрої

Для підготовки поверхонь під штукатурення, нанесення та розрівнювання штукатурного розчину використовують відповідні ручні та механізовані інструменти.

Штукатурний молоток (рис. 3.1, а) застосовують для прибивання дранки, дерев'яних рейок до поверхні і насікання кам'яних поверхонь та як ударний інструмент для інших операцій. Молоток з одного боку має бойок, а з другого - проріз для витягування цвяхів. Маса молотка 500-600 г.

Для насікання кам'яних поверхонь користуються спеціальним насікальним молотком (рис. 3.1, б), маса якого близько 1 кг.

Бучарда (рис. 3.1, в) застосовується для створення шорсткості на кам'яних поверхнях при підготовці їх під штукатурення, а також для обробки шару затверділої декоративної штукатурки ("під бучарду"). Бучарда металева, маса її 1,2-1,5 кг. На торцевих боках зроблена насічка у вигляді маленьких зубців пірамідальної форми. Кількість зубців різна (16 і 32), що дає змогу під час обробки декоративної штукатурки одержати різну фактуру поверхні.


Рис. 3.1. Інструменти для підготовки поверхонь під штукатурення:

а - молоток штукатурний; б - молоток насікальний;

в - бучарда; г - троянка; д – скарпель


Рис. 3.2. Інструменти для нанесення будівельних розчинів на поверхню:

а - алюмінієвий сокіл б - штукатурна лопатка (кельма) в - ківш

Троянкою (рис. 3.1, г) розчищають та поглиблюють шви у цегляній кладці, а також насікають бетонні і цегляні поверхні для збільшення їхньої шорсткості. Робоче лезо троянки зубчате. Замість троянки з цією ж метою використовують скарпель (рис. 3.1, д) або звичайне зубило.

Для механізованого насікання поверхні застосовують електричні або пневматичні молотки та перфоратори.

Штукатурний розчин на поверхню вручну наносять соколом, штукатурною лопаткою або ковшем.

Сокіл (рис. 3.2, а) використовують для підтримання невеликої кількості розчину на певній відстані від поверхні під час штукатурення. Соколом можна також наносити (намазувати) розчин на поверхню і ущільнювати його. Виготовляють цей інструмент з алюмінієвого листа чи пластику. Оптимальні розміри 400x400 чи 400x450 мм. Верхня робоча поверхня сокола має бути рівною, без щілин і пошкоджень.

Штукатурна лопатка або кельма (рис. 3.2, б) призначена для накидання розчину з сокола або ящика на поверхню. Лопаткою можна при потребі також наносити розчин на невеликі ділянки поверхні. Виготовляють лопатку серцеподібної форми з листової сталі завтовшки до 1 мм. До неї прикріплено дерев'яну ручку завдовжки 125 мм.

Ківш (рис. 3.2в) використовують для накидання з ящика на поверхню здебільшого рідких розчинів. Його застосування значно підвищує продуктивність праці, оскільки за один рух ковшем, залежно від його місткості, можна накинути на поверхню 0,8-1,5 л розчину.

Для розрівнювання, ущільнення і оброблення штукатурного шару застосовують напівтерки, малку, правило і терки.

Напівтерки (рис. 3.3, а, б) призначені для розрівнювання й ущільнення штукатурного шару, нанесеного на поверхню штукатурною лопаткою, ковшем або механізованим способом. Виготовляють їх з просоченої гарячою оліфою деревини (сосни, ялини) або алюмінію. Дерев'яні напівтерки залежно від довжини бувають малі (35 см), середні (80 см) і великі (120 см).

Рис. 3.3. Інструменти для розрівнювання й оброблення нанесеного на поверхню штукатурного шару:

а - напівтерки дерев'яні б - напівтерка алюмінієва в - малка, г – правило


Малою напівтеркою можна розрівнювати штукатурний шар у кутах приміщення або на невеликих важкодоступних ділянках поверхні; середньою - розчин на рівній поверхні; великою - фаски на зовнішніх кутах конструкцій.

Звичайні алюмінієві напівтерки, а також з робочим полотном з пінопласту, яке приклеєне до основи водостійкою фарбою або синтетичною смолою, здебільшого застосовують для згладжування і натирання накривного (лицьового) шару штукатурки.

Під час нанесення високоякісної штукатурки, штукатурний шар розрівнюють малкою (рис. 3.3, в), яку пересувають уздовж спеціальних рейок (маяків). Довжина робочої кромки малки має відповідати відстані між маяками.

Правилом (рис. 3.3, г) завдовжки 1,2-2 м розрівнюють штукатурний шар. Виготовляють його з дерева або з дерев'яної рейки, підбитої з одного боку алюмінієвим полотном. Вивірене двометрове правило називається контрольним і застосовується для перевірки рівності опоряджених поверхонь.

Остаточно штукатурний шар обробляють (затирають) дерев'яною, гумовою або повстяною теркою, а також гладилкою.

Рис. 3.4. Кутові напівтерки:

а-деревяні б-алюмінієві


 а            б

Рис. 3.5. Щітки

а - рогожна б - махова

Поряд з традиційними інструментами для штукатурних робіт існують спеціальні інструменти і пристрої, за допомогою яких наносять і обробляють декоративні опоряджувальні шари штукатурки.

Різні за розмірами лопатки (кельми) застосовують для нанесення декоративного розчину на поверхню і його опорядження (рис. 3.7, а).

Відрізачкою (рис.3.7,б)прорізують і очищують прорізані русти в декоративному шарі.

Дерев'яні або алюмінієві кутові напівтерки (рис. 3.4, а, б) використовують для опорядження кутів. Напівтерку для опорядження внутрішнього кута називають лузговою, зовнішнього - вусиковою. Для зручності в роботі їх роблять з двома ручками.

Для змочування поверхні водою перед штукатуренням користуються рогожною або маховою щіткою (рис. 3.5, а, б), а для зберігання і переміщення розчину на робочому місці - металевими або дерев'яними ящиками (рис. 3.6, а) і відрами. Для зручності в роботі штукатурні ящики можуть бути на колесах чи котках (рис. 3.6, б).

Шкребками (рис. 3.8) створюють шорсткість на підготовленому шарі під декоративний шар.


Рис. 3.6. Ящики для приготування розчинів

а – дерев’янии б - металевий

Русторізки і розшивки застосовують для прорізування рустів у пластичному шарі штукатурки. Найпростішу русторізку подано на рис. 3.9, а. Вона складається з дерев'яного бруска, на одному з кінців якого закріплено вигнуту металеву пластинку. Для виконання увігнутих рустів використовують розшивку (рис. 3.9, б), яку під час роботи пересувають вздовж металевої лінійки з прорізом посередині (рис. 3.9, г). Довжина лінійки 1 м.

З цією ж метою застосовують розшивку із змінними лезами (рис. 3.9, в), що дає змогу виконувати русти різної ширини і профілю. Змінне робоче лезо цієї розшивки закріплюється на держаку спеціальним гвинтом.

Металеві циклі (рис. 3.10, а), шкребок-циклю (рис. 3.10, б), цвяхову щітку (рис. 3.10, в) використовують для циклювання (подряпування) опоряджувального шару. Шкребок-цикля складається з дерев'яної основи розміром 120x180 мм, на нижній площині якої рядами закріплені металеві зубці, а зверху -ручка.

Штамповками (рис. 3.11) виконують поглиблені рисунки в пластичному шарі декоративної штукатурки.

За допомогою шаблонів, а також валиків-шаблонів з дерева та сіток (рис. 3.12) опоряджують поверхні штукатурки борознами і штрихами.


Рис. 3.7. Інструменти для нанесення декоративного розчину на поверхню і його опорядження

а - лопатки (кельми); б - відрізачка

Страницы: 1, 2


ИНТЕРЕСНОЕ



© 2009 Все права защищены.